Beyond the horizon are vast improvements to position leaders for world impact.

Click here to make an impact BEYOND.

Chapel & Student Center

Beyond the classrooms is a new 1,000-seat Chapel and Student Center. Construction plans are already in hand to convert the currently vacant Building D into a vibrant activity center for fellowship and worship.

Cafeteria expansion

Beyond the Chapel and Student Center are plans to expand the cafeteria and banquet hall to accommodate 500+ seated guests overlooking a revitalized campus pond.

Be Part of Beyond

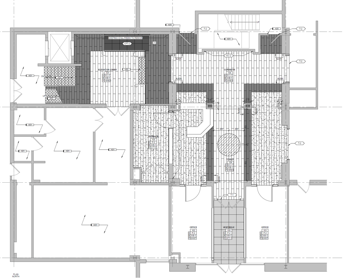
Lobby Renovations

As Urshan looks ahead to the Beyond vision, this season also marks a symbolic kickoff, a tangible step toward continued growth and renewal across our campus. One of the first visible signs of this momentum will be the renovation of the Durr Building entryway, anticipated to take place during Urshan’s winter break. Soon, this refreshed space will reflect the warmth, excellence, and spirit of Urshan. This project marks just the beginning of broader efforts to enhance and renew our campus.

Make an impact

invest in the future

Future Plans

The David K. Bernard Library

Beyond the renovations of exisiting buildings is a new stand-alone library honoring the founding president and chancellor of Urshan University.

Student Housing

Beyond the library is new student housing to accommodate 1,000+ students on campus.

Beyond tomorrow is:

  • An enhanced museum and historical center
  • An on-campus bookstore
  • A dedicated graduate school facility

Beyond is an opportunity to impact the future with endowments, scholarships, educational partnerships, and one-time gifts.

Click here to make an impact BEYOND.

(Architectural renderings and concepts by Arc Three Studio, Houston Texas and KDG, St. Louis, Missouri)

The Johnsons

Our Senior Pastor Matthew Johnson has been involved in ministry for more than 25 years. Prior to full time ministry the Johnsons both worked in the healthcare field. Pastor Johnson is an Ordained Minister of the UPCI, received his MBA summa cum laude from William Woods University, received his specialty MBA summa cum laude in healthcare administration, and is board bertified in ambulatory surgery management.  
Pastor Johnson serves on the Board of Trustees for Compassion Services International (CSI) as well as the UPCI Stewardship Advisory Council. 
The Johnsons formerly served the executive team for UPCI Youth Ministries and also served as members of the Missouri Youth Ministries leadership team. 
They are the proud parents of Abriah & Jace who are the joy of their lives, along with their two Goldendoodles, Opie Taylor & Ginger Lou. The Johnsons enjoy family time together kayaking, exploring the great outdoors, and also searching for new coffee shops wherever they travel. 

The Venturinis

Nathan and Larkin Venturini have been married and serving in ministry together since 2018. They are looking forward to welcoming their first child in August of 2023. Outside of his involvement with The Sanctuary, Nathan is an Operations Analyst for Toyota Material Handling, and Larkin is a Speech Language Pathologist for Bartholomew County Schools. Larkin is a member of The Sanctuary Kids Ministry Team, participates in The Sanctuary Choir, and is involved with Bible Quizzing. They are glad to have made Columbus their home, and are excited about what is happening in the community and church.

Vaneesa McCreary

Vaneesa McCreary and her husband, James McCreary, married in 1998. Together they have one son, Jameson. Throughout the years Vaneesa has helped in a Private Christian middle/ high school office doing anything from state reporting to substitute teaching in various classes, as needed. In 2021, Vaneesa relocated and started working part-time in The Sanctuary daycare. Later on she was asked to fulfill the role as the new daycare director. From June 2022 to December 2022, she worked in each classroom to better understand the schedule and responsibilities as well as completed director specific job training. In December 2022, she officially became The Sanctuary Church Daycare Director. 

The Gordons

Matt and Tamera Gordon have been married and have served in music ministry since 1997; as well as teaching music for many years. They have one daughter, Ava. The Gordon's have been a part of The Sanctuary since 2015. 

The Ortizs

Jorge and Amy Otiz serve as our Spanish church pastors. Prior to their pastorship, they along with their 3 children, have helped in several missions works in various countries around the world.  

The Vailes

Jonathan and Tori got married in 2014, have one daughter named Nora, and one dog named Gus. The Vailes have served as Children's Pastors at The Sanctuary since 2015 while also serving in many administrative capacities and other ministries. Prior to his transition to a full-time ministry position, Jonathan was a music teacher within the BCSC school corporation. Now, with his Master's degree in Business Administration, Jonathan is the Finance Coordinator and Children's Pastor. Tori is a 3rd grade teacher in the BCSC school corporation and serves part-time at The Sanctuary to support administrative needs.

The Sizemores

The Sizemores have served in youth ministry for over ten years, the past seven being the youth pastor's here at The Sanctuary. They lead our thriving youth and young adults group and are passionately serving in many other areas of the church. Mikayla earned her Bachelor's in Education from Indiana University and has been a special education teacher for nearly a decade. Austin earned his Bachelor's in Economics from Marian University where he won two national championships as a football player. They have been married for 7 years and recently had their first daughter Jade in 2021.

The McLaurines

Gwendolyn McLaurine MS, LMHCA, NCC completed her Bachelor's Degree in Journalism and a Master's Degree in Mental Health Counseling. She is a licensed mental health counselor in Indiana and a licensed professional counselor in Michigan. She is the owner of Living Water Mental Health LLC where she provides office and teletherapy services and specializes in helping individuals overcome the effects of childhood trauma. She has ten-plus years of individual, family, and crisis counseling experience. Gwendolyn is eclectic in her approach to therapy and seeks to use the most effective and appropriate method to address her clients' needs. 

Gwendolyn is a wife, mother of two, and lover of shopping malls. She and her husband Reggie attend The Sanctuary in Columbus, Indiana, serving on the leadership team as assistant pastors 

The Mullins

Assistant Pastors at The Sanctuary; Rebekka and Matthew Mullins have been married, and served together in ministry since 2004 and have 4 beautiful children. Matthew is Vice President at a global fortune 500 company and a partner and CEO of Equipping Leaders. With 20 years of pastoral experience, he also teaches global audiences, and offers coaching in strategy, human resources management, and leader development.